Обмерные работы зданий и сооружений, строительных конструкций
Обмерные работы - составление чертежей здания или сооружения с реальными геометрическими размерами конструкций при помощи измерительных приборов - лазерных дальномеров и геодезического оборудования. Целью проведения обмерных работ является разработка планов, разрезов, фасадов и узлов сопряжения конструкций.
Мы готовы провести провести следующие виды обмерных работ:
- разработка чертежей для разработки проекта реконструкции или перепланировки
- разработка чертежей несущих конструкций для проведения поверочных расчетов
- 3D обмеры с детальной визуализацией
- исполнительная съемка несущих и ограждающих конструкций
Москва, Ленинградское шоссе, 6
В ХОДЕ ПРОВЕДЕНИЯ ОБМЕРНЫХ РАБОТ МЫ ПОМОЖЕМ РЕШИТЬ СЛЕДУЮЩИЕ ЗАДАЧИ
- Восстановление исполнительной документации - архитектурные и конструктивные чертежи, чертежи инженерных систем, сетей и оборудования
- Составление обмерных чертежей для последующей разработки проектной документации по реконструкции и капитальному ремонту зданий и сооружений
- Определение точного положения несущих конструкций с целью проведения поверочных расчетов по несущей способности и устойчивости конструкций
- Составление 3D чертежей
- Определение объемов фактически выполненных строительно-монтажных работ
- Уточнение площадей эксплуатируемых зданий или сооружений
- Выявление прогибов, деформаций и отклонений конструкций от проектного положения при проведении геодезических обмеров
НАШИ ПРЕИМУЩЕСТВА ПРИ ПРОВЕДЕНИИ ОБМЕРНЫХ РАБОТ
- Мы вышлем пример готовых чертежей похожего здания и вы сможете оценить нашу работу
- Мы индивидуально подходим к каждому объекту и готовы помочь при проведении реконструкции, перепланировке и восстановлении исполнительной документации
- Объема наших чертежей достаточно для последующей разработки проектной документации
- Объем обмерных работ и качество оформления чертежей соответствуют требованиям ГОСТ 31937-2011 и ГОСТ Р 21.1101-2009
- Все необходимые для проведения работ свидетельства СРО и лицензии
СТОИМОСТЬ И СРОКИ ПРОВЕДЕНИЯ ОБМЕРНЫХ РАБОТ
Стоимость обмерных работ зависит от объемно-планировочных зарактеристиу здания и количества требуемых к разработке чертежей. Отправьте нам Online-запрос или позвоните нам, мы оперативно подготовим коммерческое предложение и подберем пример ранее выполненных аналогичных работ.
Как правило, обмерные работы проводятся в течение 10 - 15 рабочих дней. Для объектов большой площади или состоящих из большого количества разнотипных конструктивных объемов, срок выполнения обмеров рассчитывается индивидуально.
ПОЛЕЗНАЯ ИНФОРМАЦИЯ ПРО ОБМЕРНЫЕ РАБОТЫ
1. Состав чертежей обмерных работ
Как правило, состав и содержание обмерных чертежей определяются исходя из задач, поставленных вами, и необходимых для реализации намеченных планов - реконструкция или перепланировка здания или сооружения, геодезическая съемка несущих конструкций, исполнительная съемка фасадов или восстановление исполнительной документации.
Ниже представлен полный перечень обмерных чертежей, выполняемых нами, с примерами работ:
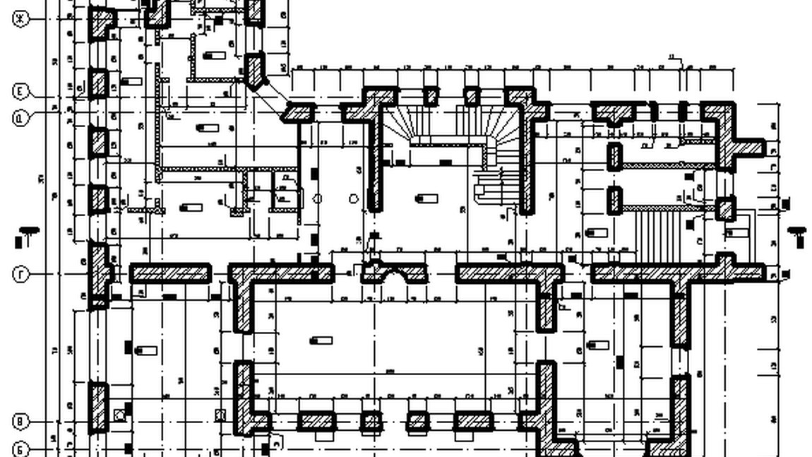
- планы этажей - разработка поэтажных планов, включая подвальный и технический этажи, с привязкой конструкций к строительным осям и разделением условными условными обозначениями по материалам.
- планы перекрытий - разработка схем несущих конструкций перекрытий и покрытия с привязкой и указанием размеров сечений балок, плит, ферм.
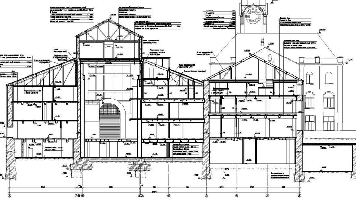
- разрезы - разработка поперечных и продольных разрезов с нанесением высотных отметок, привязкой конструкций и фундаментов, указанием толщин конструкций перекрытий и кровли.
- фасады - геодезическая съемка фасадов, нанесение высотных отметок, привязка к уровню планировки и строительным осям.
- узлы - детальная прорисовка узлов опирания конструкций перекрытий (ж/б и металлических балок и ферм) на колонны.
- фундаменты - разработка сечений фундаментов поле проходки шурфов, определение глубины заложения, ширины подошвы, привязка конструкций к полу и уровню планировки.
Все чертежи увязываются между собой, разрабатывается единая система уловных обозначений и примечаний.
2. Обмерные работы в формате 3D
Мы разрабатываем трехмерные модели зданий или сооружений, позволяющие опративно получать необходимые чертежи и анализировать конструктивные особенности узлов сопряжения конструкций.






